Tester verticale di infiammabilità dei materiali interni dei veicoli
Tester della velocità di combustione verticale dei materiali
Dettagli del prodotto:Modello ZLT-CV1
Tester di infiammabilità verticale del materiale interno del veicolo, test per determinare la velocità di combustione verticale di determinati materiali interni dell'automobile di categoria, secondo la clausola 6.2 DBL5307, GB32086.
Abbigliamento standard:
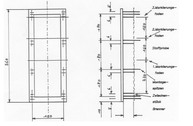
1 supporto del campione, costituito da un telaio ad angolo retto alto 560 mm con 2 barre verticali collegate permanentemente a una distanza di 150 mm a cui sono fissate le punte, le punte che sostengono il campione devono avere un diametro massimo di 2 mm e una lunghezza minima di 27 mm, in modo che il campione di prova possa essere fissato ad un livello di almeno 20 mm dal telaio,
1 prova di fiamma, con un bruciatore a gas, deve essere posizionato sotto il provino in modo che il suo asse sia posizionato al centro del bordo inferiore del provino e deve essere inclinato di 30 0 fino alla posizione verticale, la distanza tra la punta del bruciatore e il bordo inferiore del provino deve essere di 20 mm,
1 Il sistema di ventilazione deve essere sufficientemente grande da garantire che la velocità dell'aria in direzione verticale nello scarico sia compresa tra 0,10 m/s e 0,30 m/s.
1 calibro, 560×160 mm, viene utilizzato per contrassegnare le posizioni delle punte di fissaggio sul provino, in ciascun angolo del calibro di misurazione devono essere praticati fori di circa 2 mm di diametro che corrispondono alla posizione delle punte del portacampione.
1 dispositivo di protezione, ≥0,23 m3 ,
1 scala per misurare l'altezza della fiamma,
1 sistema di controllo PLC, per registrare e visualizzare i tempi di prova e la velocità di diffusione,
Alimentazione: 220V50Hz altri voltaggi richiesti.
